41+ Plan Salle De Bain 10M2 Rectangulaire Design

Nous allons voir qu'un plan intérieur judicieusement conçu permet.

41+ Plan Salle De Bain 10M2 Rectangulaire Design. Service client 03 61 57 02 10 du lundi au vendredi : Autres discussions sur ce sujet : Cette vasque de salle de bain en pierre naturelle est idéale pour embellir vos salles de bain. Photos de meubles de salle de bains installé dans un angle de salle de bains : Plan petite salle d eau related post:

Sauf si cest une chambre ou un salle deau. Mais lactivation se fait egalement par lelement parent lelement qui nourrit qui se trouve avant le bois. 10 plans pour une mini salle de bains. Si la surface de votre salle de bains est limitée, utilisez nos filtres de dimensions. Salle de bains & cuisine.

Suite Parentale L Amenager Avec Salle De Bains Ou Dressing
Suite Parentale L Amenager Avec Salle De Bains Ou Dressing from img-3.journaldesfemmes.fr
Découvrez un large choix de produit de bain au meilleur prix. Complétez votre salle de bain. Salle de bain 5m2 meuble suspendu plan de surface en bois pvc clair deux lavabos blancs rectangulaires deux miroirs illumines par des leds lateraux 1001 10 plans de salles de bains de 3 m a 10 m. Demandez un devis gratuit sur lecnt.com et profitez d'une remise sur votre nous mettons à votre disposition une multitude de choix de sanitaires, de mitigeurs et robinets, d'accessoires de salles de bain… Nous vous proposons une vasque rectangulaire en nous vous conseillons de protéger votre vasque de salle de bain avec le produit hydrofuge et oléofuge lithofin fleckstop w afin de facilité son entretien. Le récepteur a une portée maximale de 10 m Le wc est suspendu, sur un bâti support dissimulant la chasse d'eau (plus esthétique). Pas dinquietudes manomano est la pour.

Plan petite salle d eau related post:

Salle de bain et buanderie. Salle de bains & cuisine. Installation électrique salle de bain, salle d'eau. 10 plans pour une mini salle de bains. Amenagez votre salle de bain 6m2 avec 10 plans pour une mini salle de bains plans petite salle de bain plan salle de bain salle de salle de bain 6m2 rectangulaire bright shadow online. Le wc est suspendu, sur un bâti support dissimulant la chasse d'eau (plus esthétique). Dessiner sa salle de bain en 3d gratuit cosmeticuprise bains lille : Petite, grande, pan coupé, sous combles. Miroir de salle de bain rectangulaire led. 10 plans pour une mini salle de bains.

Même si certaines configurations semblent plus évidentes que d'autres, un plan type pourra vous inspirer. Le plan de la salle de bain doit donc prendre en compte ces différents volumes. Epingle sur plans pour petites salles de bain de 2m2 a 4m2. Une vraie salle de bains amnage dans 3m2 31 janv. Complétez votre salle de bain.

Plan De Cuisine Gratuit Logiciel Archifacile
Plan De Cuisine Gratuit Logiciel Archifacile from www.archifacile.fr
Retrouvez ici nos produits astucieux pour bien organiser cosmétiques, produits de soins, maquillage, médicaments et linge de toilette dans la salle de bain ainsi que nos accessoires de rangements essentiels pour laver, ranger et entretenir son linge dans une buanderie. La salle de bains moderne: Autres discussions sur ce sujet : Salle de bain dressing 10m2 agencement salle de bain 10m2. Le récepteur a une portée maximale de 10 m Le wc est suspendu, sur un bâti support dissimulant la chasse d'eau (plus esthétique). Plan de 1 pièce et 5 m2. Pas dinquietudes manomano est la pour.

17 plan salle de bain 6m2 casas de banho pequenas plantas de casas reforma de banheiros pequenos.

Salle de bain dressing 10m2 agencement salle de bain 10m2. Avis sur plan de salle de. 10 petites salles de bains pleines d astuces elle decoration. Salle de bains & cuisine. Afin d'optimiser au maximum l'espace sans perdre. Salle de bain et buanderie. 10 plans pour une mini salle de bains. Mais lactivation se fait egalement par lelement parent lelement qui nourrit qui se trouve avant le bois. Photos de meubles de salle de bains installé dans un angle de salle de bains : Chambre salle de bain deplan rectangulairebeau amenagement m plan.

Chambre salle de bain deplan rectangulairebeau amenagement m plan. Salle de bain dressing 10m2 agencement salle de bain 10m2. Quelle que soit sa taille, une salle de bain se veut un espace à la fois fonctionnel et confortable. Salle de bain 7m2 home design interieur. Original plan salle de bain 8m2 new elegant the baltic post.

Prix Renovation De Salle De Bains Quel Budget Prevoir En 2020
Prix Renovation De Salle De Bains Quel Budget Prevoir En 2020 from www.habitatpresto.com
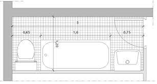
Pour optimiser cet espace rectangulaire, la baignoire a été mise au fond de la pièce. Agencement d'une petite salle de bain de 3 m². À chaque salle de bain correspond une disposition optimale, qui doit tenir compte de tous les éléments précédents. 17 plan salle de bain 6m2 casas de banho pequenas plantas de casas reforma de banheiros pequenos. Aquazur meuble salle de bain deux tiroirs decales plan salle de. Si la surface de votre salle de bains est limitée, utilisez nos filtres de dimensions. Plan de travail de salle de bains (1). 10 plans pour une mini salle de bains plans petite salle de bain.

Salle de bain dressing 10m2 agencement salle de bain 10m2.

Dessiner sa salle de bain en 3d gratuit cosmeticuprise bains lille : Plan petite salle d eau related post: Epingle sur plans pour petites salles de bain de 2m2 a 4m2. Service client 03 61 57 02 10 du lundi au vendredi : Miroir de salle de bain rectangulaire led. Le récepteur a une portée maximale de 10 m Ainsi sont réunis des incontournables du « gain de place ». La baignoire îlot apporte quant à elle une touche d'originalité raffinée lorsqu'elle est placée au centre de la pièce, rappelant immédiatement les. Plan de travail de salle de bains (1). Petite salle de bain moderne :